gregory sarver ARCHITECT ltd
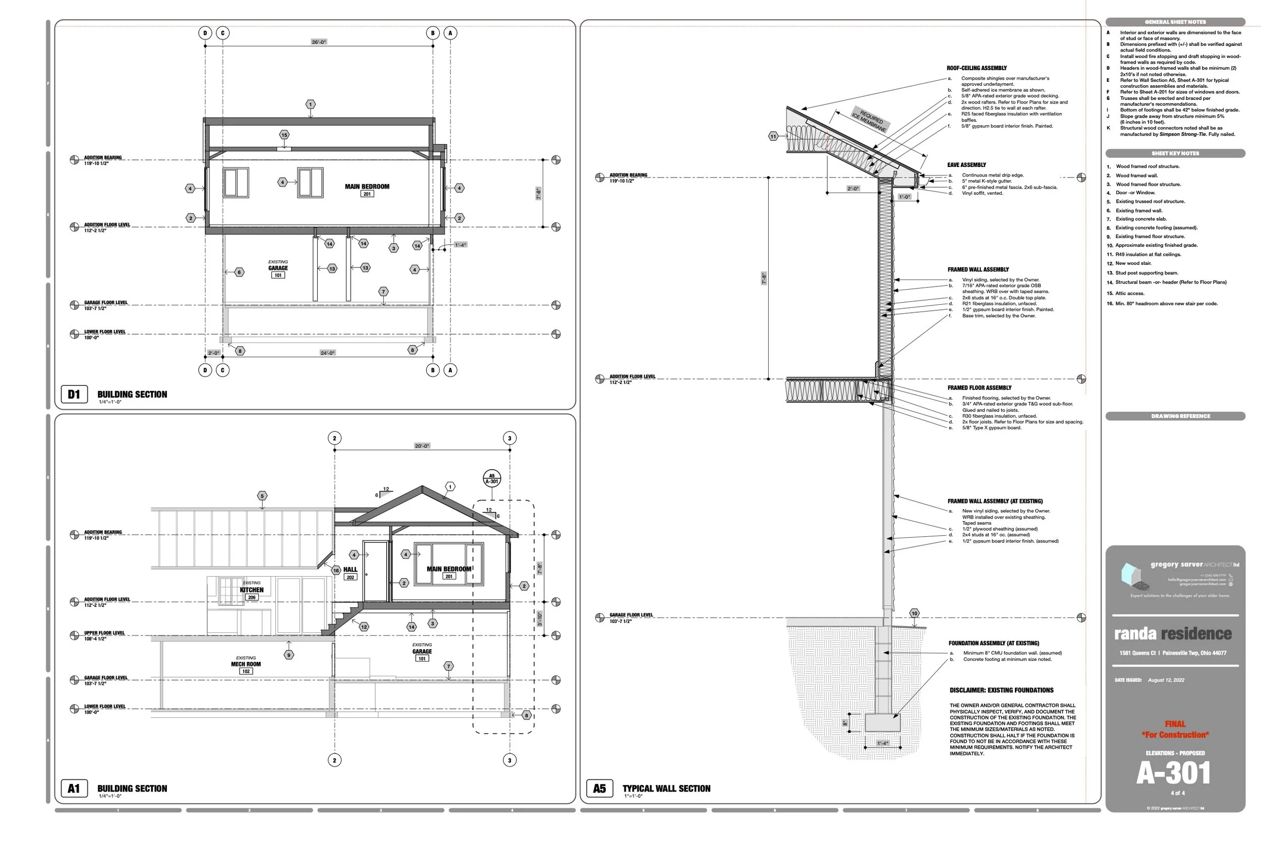
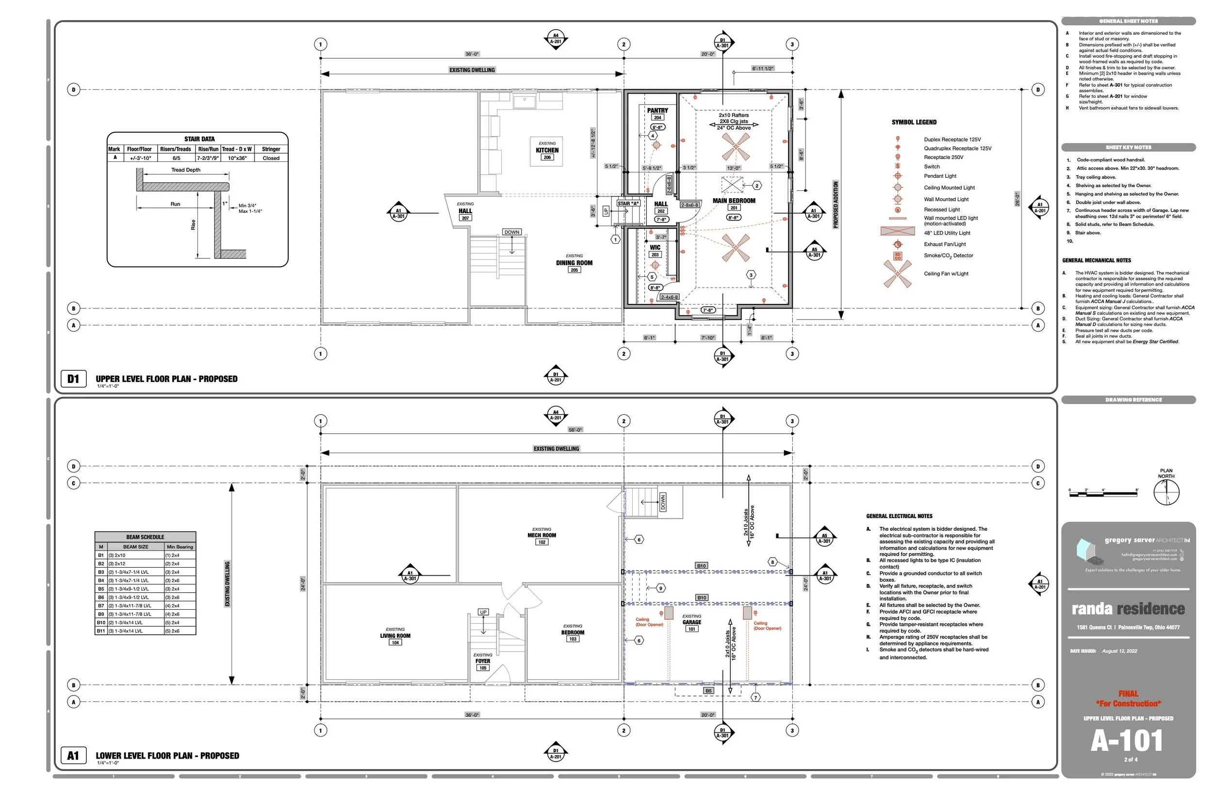
Example of Construction Documents for a second floor bedroom addition.
Sheet 1: General Information
Sheet 2: Plans
Sheet 3: Elevations
Sheet 4: Sections